Home for Sale at 608 Hort St in Westfield Town, NJ for $899,000

Javascript is required to view this map.
Printable Map

608 Hort St | Westfield Town

$899,000 | 4 Beds | 1 Baths (1 Full) | 1,922 Sq. Ft.

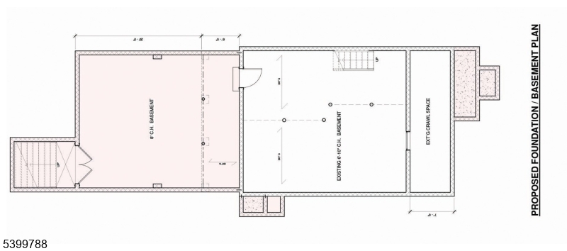
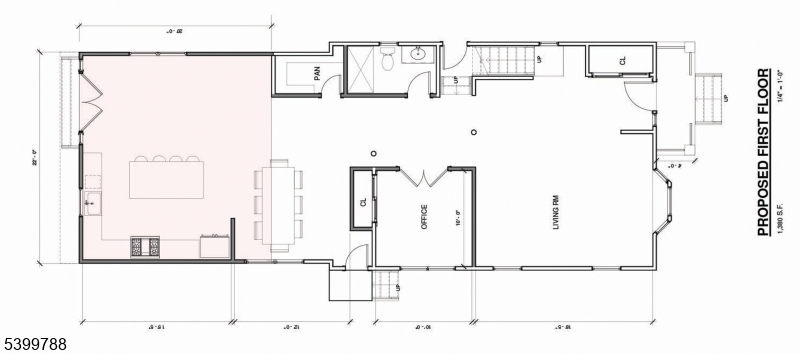
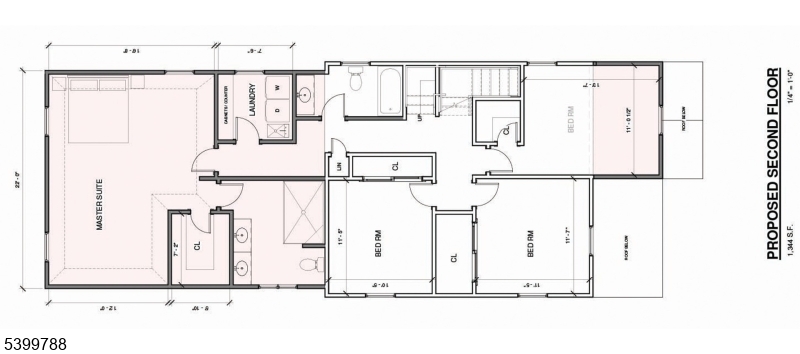
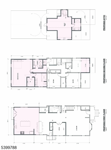
Strategically repositioned to 899,000, this is an exceptional opportunity to build a custom residence in one of New Jersey's most sought after communities. Ideally located just 0.70 miles from the Westfield NJ Transit station and vibrant downtown district, this property offers a rare chance to create a fully reimagined home in a premier neighborhood where quality new construction continues to command strong demand.The existing structure has been completely gutted, allowing the next owner to move into the construction phase upon final site plan approval. Architectural plans have been revised and resubmitted to the Westfield Planning Board for approval, and reflect a thoughtfully designed expansion aligned with today's luxury buyer expectations. The proposed residence features an open concept first floor with a spacious kitchen and family room, private office, and full bath. The second level includes a sophisticated primary suite and three additional bedrooms. The third floor offers a large finished room with full bath, ideal for flexible living, guest space, or recreation. The expanded home is designed for approximately 3,000 square feet, consisting of 9 rooms, 4 bedrooms, and 4 full baths, plus a full basement. A detached two car garage is also proposed. Survey is attached.This offering presents a streamlined path for builders, investors, or end users ready to act in a market where well located build opportunities are increasingly limited. GSMLS 4000628

Directions to property: South Ave to Scotch Plains Ave to Hort St

MLS Listing ID: 
GSMLS 4000628
Listing Category: 
Purchase
Listing Status
Status of the Listing.
Listing Status: 
Active
Listing Status (Local): 
Active
Listing Pricing
Pricing information for this listing.
List Price: 
$899,000
Basic Property Information
Fields containing basic information about the property.
Property Type: 
Residential
Property Sub Type: 
Single Family Detached
Primary Market Area: 
Westfield Town
Address: 
608 Hort St, Westfield Town, NJ 07090-4164, U.S.A.
County: 
Union
Latitude: 
40.6452100
Longitude: 
-74.3598200
Directions: 
South Ave to Scotch Plains Ave to Hort St
Public Remarks: 
Strategically repositioned to 899,000, this is an exceptional opportunity to build a custom residence in one of New Jersey's most sought after communities. Ideally located just 0.70 miles from the Westfield NJ Transit station and vibrant downtown district, this property offers a rare chance to create a fully reimagined home in a premier neighborhood where quality new construction continues to command strong demand.The existing structure has been completely gutted, allowing the next owner to move into the construction phase upon final site plan approval. Architectural plans have been revised and resubmitted to the Westfield Planning Board for approval, and reflect a thoughtfully designed expansion aligned with today's luxury buyer expectations. The proposed residence features an open concept first floor with a spacious kitchen and family room, private office, and full bath. The second level includes a sophisticated primary suite and three additional bedrooms. The third floor offers a large finished room with full bath, ideal for flexible living, guest space, or recreation. The expanded home is designed for approximately 3,000 square feet, consisting of 9 rooms, 4 bedrooms, and 4 full baths, plus a full basement. A detached two car garage is also proposed. Survey is attached.This offering presents a streamlined path for builders, investors, or end users ready to act in a market where well located build opportunities are increasingly limited.
Community Information
Elementary: 
Mckinley
Middle: 
Roosevelt
High: 
Westfield
Building Details
Details about the building on a property.
Architectural Style: 
Colonial
Year Built: 
1910
New Construction: 
0
Living Area: 
1,922
Basement: 
Full
Fireplaces: 
No
Construction
Roof: 
Composition Shingle
Exterior: 
See Remarks
Energy Information: 
Electric, Gas-Natural
Porch: 
No
Deck: 
No
Room Details
Details about the rooms in the building.
Total Rooms: 
7
Total Bedrooms: 
4
Total Bathrooms: 
1
Total Full-Bathrooms: 
1
Total Half-Bathrooms: 
0
Utilities
Information about utilities available on the property.
Heating System: 
See Remarks
Heating System Fuel: 
See Remarks
Cooling System: 
See Remarks
Water Source: 
Public Water
Sewer: 
Public Sewer
Lot/Land Details
Details about the lots and land features included on the property.
Acres: 
0.17
Lot Size (Dimensions): 
50X157
Waterfront: 
0
Lot Features
Driveway: 
1 Car Width
Parking Type: 
1 Car Width
Total Parking Spaces: 
0
Garage: 
See Remarks
Fence: 
No
Public Record
Parcel Number: 
2920-02608-0000-00016-0000-
Lot Number: 
16
Annual Tax: 
$10,796.00
Contract Details
Details about the listing contract.
Possession: 
AT CLOSING
Listing Participants
Participants (agents, offices, etc.) in the transaction.
Listing Office Name: 
ERA QUEEN CITY REALTY

Request More Information